Beschrijving

** ENGLISH TRANSLATION BELOW **

Stijlvol en comfortabel wonen in het hart van Oost

Welkom aan de geliefde Eerste Atjehstraat! Dit prachtig gerenoveerde 2-kamerappartement (ca. 52 m²) op de bovenste verdieping biedt de perfecte mix van luxe, licht en rust, midden in de bruisende Indische Buurt. Geniet van een royale woonkamer, een lichte slaapkamer en een panoramisch vrij uitzicht. Hier woon je in een trendy buurt met alles wat je nodig hebt binnen handbereik.

Indeling:
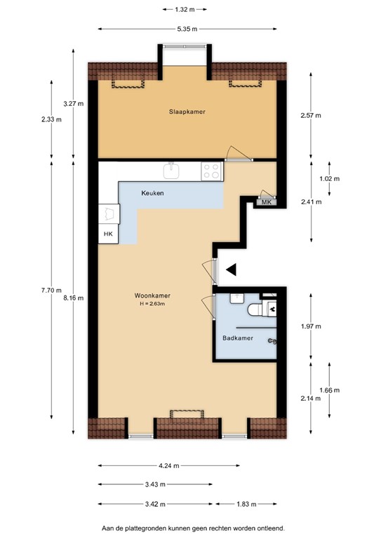
Via de gemeenschappelijke entree bereik je de vierde en bovenste verdieping, waar dit charmante appartement zich bevindt. De ruime hal leidt naar de lichte woonkamer, waarin grote raampartijen voor een overvloed aan natuurlijk licht zorgen. Aan de voorzijde is een knusse zithoek gecreëerd, ideaal als thuiswerkplek of leeshoek.

De open keuken, volledig vernieuwd in 2023, is voorzien van hoogwaardige inbouwapparatuur en biedt volop kastruimte. Hier bereid je moeiteloos heerlijke maaltijden in stijl. Grenzend aan de woonkamer bevindt zich de royale slaapkamer, eveneens licht en ruim, met plek voor een groot bed en een royale kledingkast.

De recent vernieuwde badkamer is modern afgewerkt met lichte tegels en uitgerust met een inloopdouche, wastafel en toilet. De badkamer is stijlvol, comfortabel en praktisch.

Erfpacht:
De voortdurende erfpacht loopt tot 2056, met een jaarlijkse canon van €765,72 en een indexatie om de vijf jaar. Vanaf 2056 is de erfpacht eeuwigdurend eeuwigdurend afgekocht.

Vereniging van Eigenaren (VvE):
Het betreft een gezonde en actieve Vereniging van Eigenaren (VvE). De VvE wordt beheerd door de bewoners zelf en bestaat uit 5 appartementsrechten. Er wordt jaarlijks vergaderd en er is een meerjarig onderhoudsplan (MJOP) aanwezig. De maandelijkse bijdrage bedraagt €80.

Omgeving:
De Indische Buurt is een van de meest gewilde wijken van Amsterdam, bekend om zijn gezellige sfeer, diversiteit en uitgebreide voorzieningen. Op loopafstand vind je talloze winkels, supermarkten, speciaalzaken, cafés en trendy restaurants. Ook de Javastraat, Dappermarkt en Oostpoort liggen vlakbij. Voor ontspanning zijn het Oosterpark en Flevopark dichtbij. Daarnaast zijn er diverse sportclubs, goede scholen en uitstekende OV-verbindingen (Amstelstation, Muiderpoortstation en Science Park). Via de nabijgelegen A10 ben je snel onderweg naar de rest van de stad en daarbuiten.

Bijzonderheden:
- Sfeervol en licht 2-kamerappartement (ca. 52 m²)
- Bovenste verdieping (geen bovenburen)
- Volledig gerenoveerd eind 2023
- Nieuwe vloeren en isolatie in 2025
- Energielabel B
- CV-ketel uit 2023
- Gezonde en actieve VvE (5 leden), bijdrage €80 per maand
- Erfpacht afgekocht vanaf 2056

Een instapklaar appartement op een toplocatie in Amsterdam-Oost, ideaal voor wie de levendigheid van de stad wil combineren met rust en comfort. 

----------

Stylish and comfortable living in the heart of East Amsterdam

Welcome to the beloved Eerste Atjehstraat! This beautifully renovated 1-bedroom apartment (approx. 52 m²) on the top floor offers the perfect mix of luxury, light, and tranquility, right in the vibrant Indische Buurt. Enjoy a spacious living room, a bright bedroom, and stunning unobstructed views. Live in a trendy neighborhood with all amenities within easy reach.

Layout:
Through the shared entrance, you reach the fourth and top floor, where this charming apartment is located. The spacious hallway leads to the bright living room, flooded with natural light thanks to large windows. At the front, a cozy seating area has been created, perfect as a home office or reading nook.

The open kitchen, fully renovated in 2023, is equipped with high-quality built-in appliances and plenty of storage space. It’s a perfect spot to effortlessly prepare delicious meals in style. Adjacent to the living room is the spacious, bright bedroom, with room for a large bed and a generous wardrobe.

The recently renovated bathroom is modern and stylish, with light tiles, a walk-in shower, sink, and toilet. Comfortable, practical, and elegant.

Ground lease:
The ongoing ground lease runs until 2056, with an annual payment of €765.72, indexed every five years. From 2056 onward, the ground lease has been permanently bought off.

Homeowners’ Association (VvE):
This is a healthy and active Homeowners’ Association (VvE), managed by the residents themselves, consisting of 5 apartment units. Annual meetings are held, and a multi-year maintenance plan (MJOP) is in place. The monthly contribution amounts to €80.

Neighborhood:
The Indische Buurt is one of Amsterdam’s most sought-after neighborhoods, known for its vibrant atmosphere, diversity, and excellent amenities. Within walking distance, you’ll find numerous shops, supermarkets, specialty stores, cafés, and trendy restaurants. The Javastraat, Dappermarkt, and Oostpoort are also nearby. For relaxation, Oosterpark and Flevopark are close at hand. Additionally, there are various sports clubs, good schools, and excellent public transport connections (Amstel Station, Muiderpoort Station, and Science Park). The nearby A10 highway ensures quick access to the rest of the city and beyond.

Features:
- Stylish and bright 1-bedroom apartment (approx. 52 m²)
- Top floor (no upstairs neighbors)
- Fully renovated end of 2023
- New floors and insulation in 2025
- Energy label B
- Central heating system from 2023
- Healthy and active VvE (5 members), €80 monthly contribution
- Leasehold redeemed from 2056

A move-in ready apartment in a prime Amsterdam-East location, ideal for those who want to combine the city’s vibrancy with peace and comfort.

Kenmerken